Lý do nhà phố có gara được săn đón bắt nguồn từ nhu cầu bảo quản phương tiện cá nhân an toàn ngay tại gia. Đây là giải pháp kiến trúc tất yếu giúp nâng tầm chất lượng sống trong bối cảnh quỹ đất đô thị ngày càng hạn hẹp.
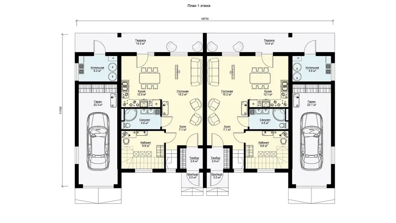
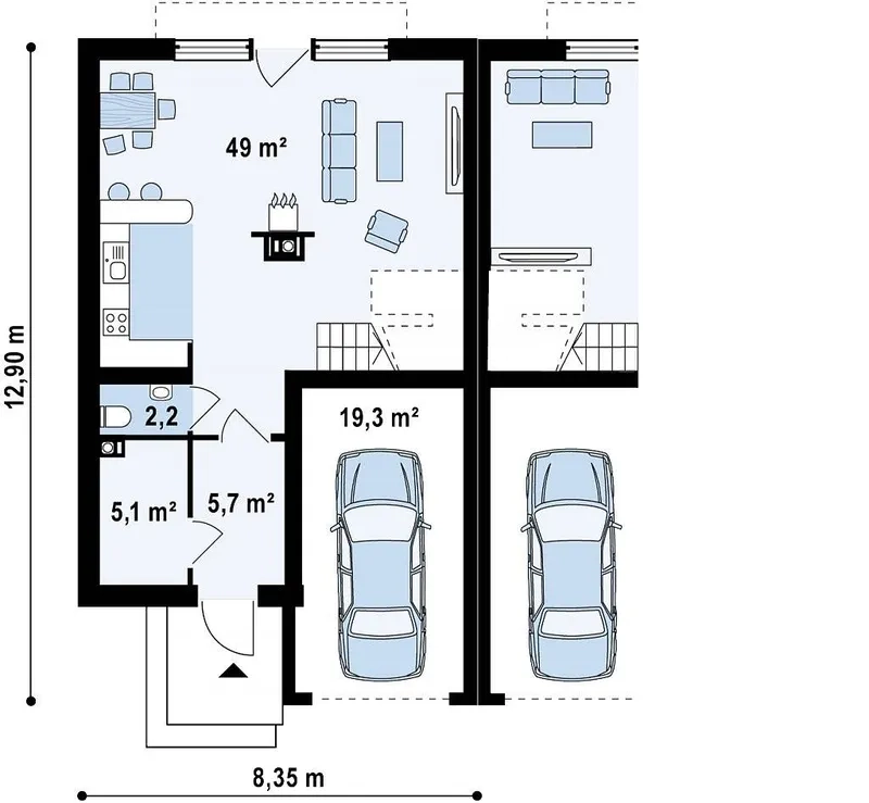
Những kiểu thiết kế nhà phố có gara được yêu thích
Những kiểu thiết kế nhà phố có gara được yêu thích thường bao gồm mẫu nhà ống hiện đại với gara phía trước hoặc kiểu nhà phố có tầng hầm/bán hầm để tối ưu không gian sống.
>>> Xem thêm tại: Mẫu sân thượng nhà phố tiện nghi cho không gian đa năng


















>>> Xem thêm tại: Bí quyết kiến tạo không gian phòng khách nhà phố lý tưởng
Phong cách tối giản với cửa cuốn tự động hoặc thiết kế tân cổ điển kết hợp gara cửa gỗ sang trọng cũng đang dẫn đầu xu hướng. Việc bố trí gara khéo léo không chỉ đảm bảo công năng mà còn tăng tính thẩm mỹ và giá trị cho toàn bộ công trình kiến trúc.
Những lưu ý khi thi công nhà phố có gara
Để đảm bảo an toàn và vận hành tốt, những lưu ý khi thi công nhà phố có gara cần được gia chủ chú trọng.
- Độ dốc: Thiết kế gờ giảm tốc và độ dốc mặt sàn dưới 20% để tránh chạm gầm xe.
- Thông gió: Lắp quạt hút hoặc ô thoáng để khử khí thải và mùi xăng dầu độc hại.
- Chống trơn: Sử dụng gạch nhám hoặc đá tự nhiên chịu lực, dễ chùi rửa dầu mỡ.
- An toàn: Trang bị bình chữa cháy và cảm biến khói ngay tại khu vực để xe.
- Kích thước: Chiều cao cửa tối thiểu 2m; đảm bảo khoảng cách mở cửa xe thoải mái.
- Cấp thoát nước: Bố trí vòi nước rửa xe và rãnh thoát nước chống ngập úng.
>>> Xem thêm tại: Mẫu thiết kế giếng trời nhà phố được ưa chuộng hiện nay
Nhà phố có gara là sự lựa chọn hoàn hảo cho cuộc sống đô thị hiện đại và tiện nghi. Hy vọng bộ sưu tập này sẽ giúp bạn tìm thấy ý tưởng phù hợp cho ngôi nhà tương lai. Hãy liên hệ chuyên gia để được tư vấn ngay!